Loading...

Horace, ND, 58047 • 58047 • Cass County
-$8,900 since Sep 11, 2025
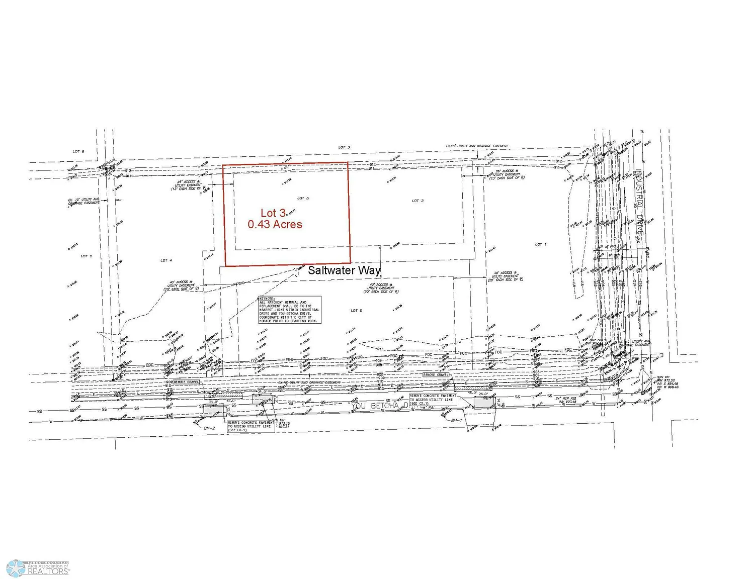
0.43 acLot
Demand and pricing signals for this listing
7 views
People checking out this listing
230 days on market
Established listing
Lot
PRIME LAND with high visibility in Horace's growing industrial park. Five lot development on a private road designed with semi-access in mind. All underground utility infrastructure is in place - these lots are build ready! Buyer/Buyer Agent to verify Taxes & Special Assessments. Owner/Partner is a Real Estate Agent. See also MLS#: 25-490, lots could be combined.
Based on current rates
Est. 6.75% rate · 30yr fixed · $191,920 loan
Full calculator →Key facts and listing details
2 categories of property features
Market data and value estimates
3 schools rated nearby
Horace, ND, 58047
2 events
Local context around this listing
Horace, ND • Cass County
Nearby cities
Nearby zip codes
Based on information submitted to the MLS GRID as of 2026-03-27 06:03:04 PDT. All data is obtained from various sources and may not have been verified by broker or MLS GRID. Supplied Open House Information is subject to change without notice. All information should be independently reviewed and verified for accuracy. Properties may or may not be listed by the office/agent presenting the information. Some IDX listings have been excluded from this website. [Click here for more information](/mls-disclaimers/#28) By searching NorthstarMLS listings you agree to the [NorthstarMLS End User License Agreement](https://www.mlsgrid.com/s/RMLS-EULA.pdf)
No obligation · Same-day response