Loading...

Washington, DC, 20001 • Park View • District of Columbia
$393/sqft
Down payment assistance available
1,400Sqft
0.03 acLot
1916Built
Traditional Style
Built 1916 · 110 years of history
Columbia Heights
Park View
Special Features
Above Grade · Below Grade
This home is getting attention
Listed 35 days ago · 86 views · 3 saves
Demand and pricing signals for this listing
86 views
People checking out this listing
3 saves
Buyers have saved this home
35 days on market
Established listing
$393/sqft
Price per square foot
This home ranks in the top 32% of listings most likely to go under contract soon, based on market activity and demand signals.
Want the full market analysis?
Get the detailed selling prediction score, comparable sales data, and price trend forecast for this property.
Free · Delivered to your inbox in minutes
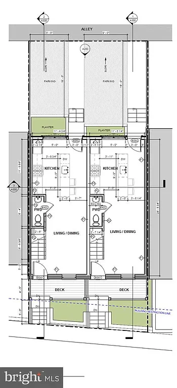
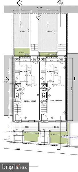
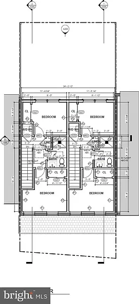
Townhouse · Built 1916 · Historic
Excellent opportunity for development. The prior building has been cleared, with only the original front façade remaining. Proposed plans include two luxury townhomes, each featuring 2 bedrooms, 1.5 bathrooms, and parking located at the rear of the property. The project is in the process of obtaining permits. Reach out to the listing agent for plans, renderings, and current project status.
Based on current rates
Est. 6.75% rate · 30yr fixed · $440,000 loan
Full calculator →Key facts and listing details
8 categories of property features
1 room detailed
Basement
Market data and value estimates
3 schools rated nearby
Washington, DC, 20001
1 event
Local context around this listing
Washington, DC • District of Columbia
Nearby neighborhoods
Nearby cities
Nearby zip codes
The data relating to real estate for sale on this website appears in part through the BRIGHT Internet Data Exchange program, a voluntary cooperative exchange of property listing data between licensed real estate brokerage firms, and is provided by BRIGHT through a licensing agreement. Listing information is from various brokers who participate in the Bright MLS IDX program and not all listings may be visible on the site. The property information being provided on or through the website is for the personal, non-commercial use of consumers and such information may not be used for any purpose other than to identify prospective properties consumers may be interested in purchasing. Some properties which appear for sale on the website may no longer be available because they are for instance, under contract, sold or are no longer being offered for sale. Property information displayed is deemed reliable but is not guaranteed. Copyright 2026 Bright MLS, Inc. [Click here for more information](/mls-disclaimers/#5632)
No obligation · Same-day response