Loading...

Lincoln, CA, 95648 • 95648 • Placer County
$254/sqft
Down payment assistance available
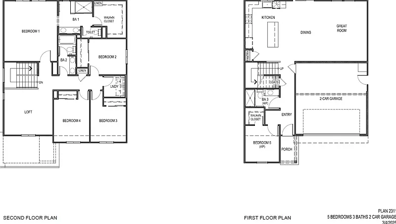
5Beds
3Baths
2,311Sqft
0.07 acLot
2025Built
Jasper
95648
2-Car Garage
Attached · Garage Door Opener · Garage Faces Front · Garage Faces Rear
Wood Floors
Quality flooring throughout
This home is getting attention
Listed 18 days ago · 275 views · 11 saves
Demand and pricing signals for this listing
275 views
People checking out this listing
11 saves
Buyers have saved this home
18 days on market
Recently listed
$254/sqft
Price per square foot
This home ranks in the top 36% of listings most likely to go under contract soon, based on market activity and demand signals.
Want the full market analysis?
Get the detailed selling prediction score, comparable sales data, and price trend forecast for this property.
Free · Delivered to your inbox in minutes
Single Family · Built 2025
No HOA. Brand new solar home offering a two-story floor plan with 5 bedrooms, 3 bathrooms, and a 2-car garage. Features include a spacious open-concept great room, and a walk-in closet in the primary bedroom. Home is equipped with vinyl plank flooring all downstairs, carpet upstairs, quartz counter tops and shaker-style cabinets. Home features a Connected® Smart Home System which includes a programmable thermostat, door locks, smart light switch and touchscreen Smart Home control device when the system is connected to the internet.
Standout features identified
Our analysis highlights carpet upstairs, shaker-style cabinets, and programmable thermostat as key attractions of this home.
Based on current rates
Est. 6.48% rate · 30yr fixed · $470,392 loan
Full calculator →Key facts and listing details
9 categories of property features
4 rooms detailed
Master Bedroom
Master Bathroom
Dining Room
Kitchen
Market data and value estimates
3 schools rated nearby
Lincoln, CA, 95648
1 event
Local context around this listing
Lincoln, CA • Placer County
Nearby cities
Nearby zip codes
No obligation · Same-day response