Loading...

Chappaqua, NY, 10514 • 10514 • Westchester County
$586/sqft
4Beds
7Baths
5,712Sqft
0.94 acLot
2026Built
Colonial Style
Colonial architecture
2 Fireplaces
Bedroom · Family Room
3-Car Garage
Attached
This home is getting attention
Listed 34 days ago · 1,697 views · 47 saves
Demand and pricing signals for this listing
1,697 views
People checking out this listing
47 saves
Buyers have saved this home
34 days on market
Established listing
$586/sqft
Price per square foot
Single Family · Built 2026
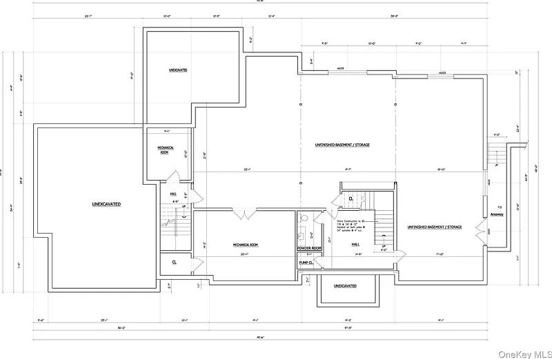
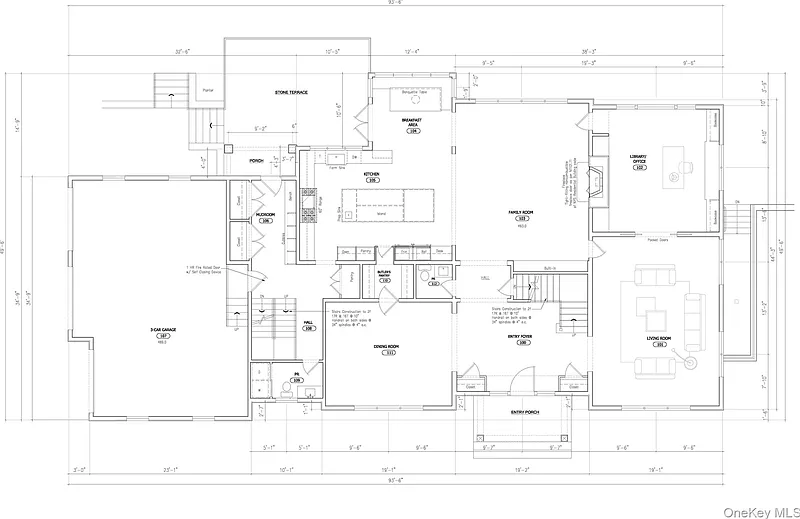
Exciting all new construction by highly regarded local builder, Tavo Development, along with noted architect Teo Siguenza, aiming for a Fall 2026 completion. This refined, 5,712 sq ft Colonial blends classic architecture with sophisticated modern living. The light-filled main level, with 10’ ceilings, offers a seamless open floorplan featuring a chef’s kitchen with island and service pantry, breakfast room with terrace access, formal dining room, private library, and an inviting family room with fireplace. A dramatic two-story entry foyer, generous mudroom with laundry, and attached 3-car garage complete the level. Upstairs, the luxurious primary suite is a true retreat, highlighted by a vaulted ceiling, fireplace, dressing room with island, and a spa-inspired dual bath with soaking tub and oversized shower with separate entries. Three additional ensuite bedrooms and a second laundry provide comfort and functionality. Nearly one acre of usable grounds, with town approved pool site, creates the ideal backdrop for the finest outdoor living. Next to 2026 new build by Tavo, in the Chappaqua school district. Convenient to town, schools, highways, and approximately 50 minutes to NYC. House has a 5 bedroom septic system.
Based on current rates
Est. 6.87% rate · 30yr fixed · $2,680,000 loan
Full calculator →Key facts and listing details
8 categories of property features
3 rooms detailed
Other
FirstOther
SecondOther
LowerMarket data and value estimates
3 schools rated nearby
Chappaqua, NY, 10514
1 event
Local context around this listing
Chappaqua, NY • Westchester County
Nearby cities
Nearby zip codes
Based on information submitted to the MLS GRID as of 2026-02-06 15:18:24 PST. All data is obtained from various sources and may not have been verified by broker or MLS GRID. Supplied Open House Information is subject to change without notice. All information should be independently reviewed and verified for accuracy. Properties may or may not be listed by the office/agent presenting the information. Some IDX listings have been excluded from this website. [Click here for more information](/mls-disclaimers/#778)
No obligation · Same-day response