Loading...

Edmonton, AB, T5T4P5 • Lewis Farms • Division No. 11
$266/sqft
Down payment assistance available
3Beds
3Baths
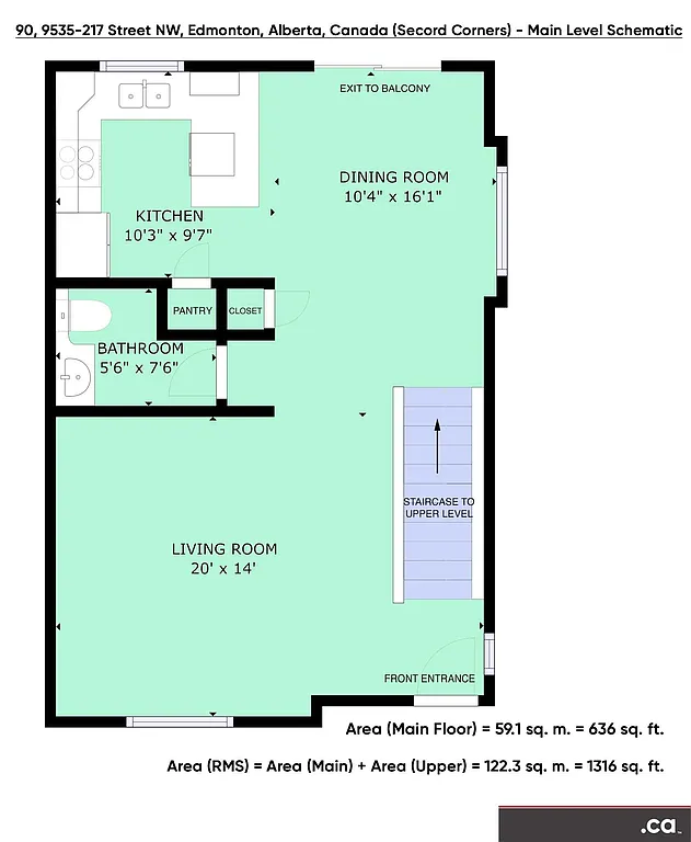
1,316.44Sqft
0.05 acLot
2013Built
Enhanced Security
Secured Garage/Parking · Secured Parking
Outdoor Living
Deck · Front Porch
Non-Ceramic Tile Floors
Quality flooring throughout
This home is in high demand
Listed 13 days ago · 44 views · 3 saves · Top 10% likely to sell soon
Demand and pricing signals for this listing
44 views
People checking out this listing
3 saves
Buyers have saved this home
13 days on market
Recently listed
$266/sqft
Price per square foot
This home ranks in the top 10% of listings most likely to go under contract soon, based on market activity and demand signals.
Want the full market analysis?
Get the detailed selling prediction score, comparable sales data, and price trend forecast for this property.
Free · Delivered to your inbox in minutes
Townhouse · Built 2013
Nice 2-Storey Townhouse Condo End Unit in Secord Corners -- great for first-time home Buyers! Unit features: * 3 Bedrooms & 2.5 Baths * Feature Glass Stairway Divider Wall * Nicely Carpeted Staircases * Upgraded Cabinetry * Granite Countertops * Stainless Steel & Black Appliances * Balcony Access Off Kitchen / Dining Room (With Gas BBQ Outlet) * Sizeable Primary Bedroom with Full En Suite Bathroom and Walk-in Closet * Air Conditioning * Built-in Vacuum System * New Hot Water Tank * Attached and Oversized Double Attached Garage with Basement Access. Secord Corners Condominium is a quality 2013-built complex by Footprint Developments & professionally managed by CORE Management. Over $480K reserve fund (Feb. 2026) with current condo documents package available for review. 45-day possession. Located in West Edmonton (Community of Secord) with easy access to Winterburn Road, Stony Plain Road, Retail, Professional Services, Ranch Golf & Country Club, Whitemud Drive, & Anthony Henday Drive.
Standout features identified
Our analysis highlights nicely carpeted staircases, upgraded cabinetry, and granite countertops as key attractions of this home.
Based on current rates
Est. 6.75% rate · 30yr fixed · $279,920 loan
Full calculator →Video Tour
Open in new tab ↗Loading video tour…
Key facts and listing details
12 categories of property features
1 room detailed
Master Bedroom
UpperMarket data and value estimates
Edmonton, AB, T5T4P5
Local context around this listing
Edmonton, AB • Division No. 11
Nearby neighborhoods
Nearby cities
Nearby zip codes
Data is deemed reliable but is not guaranteed accurate by the REALTORS® Association of Edmonton. Copyright 2026 by the REALTORS® Association of Edmonton. All Rights Reserved.
No obligation · Same-day response