Loading...

Brunswick, MD, 21716 • 21716 • Frederick County
$186/sqft
4Beds
4Baths
3,675Sqft
2026Built
Brunswick Crossing Single Family Homes
21716
2-Car Garage
Garage
This home is getting attention
Listed 25 days ago · 105 views · 3 saves
Demand and pricing signals for this listing
105 views
People checking out this listing
3 saves
Buyers have saved this home
25 days on market
Recently listed
$186/sqft
Price per square foot
This home ranks in the top 43% of listings most likely to go under contract soon, based on market activity and demand signals.
Want the full market analysis?
Get the detailed selling prediction score, comparable sales data, and price trend forecast for this property.
Free · Delivered to your inbox in minutes
Single Family · Built 2026
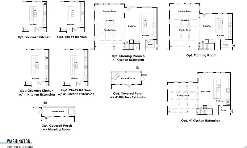
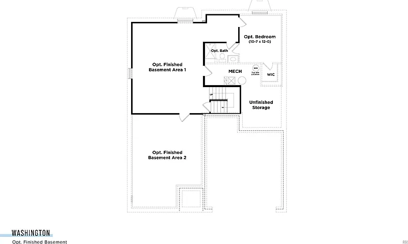
Welcome to the Washington, a home with a welcoming front porch and beautifully balanced exterior design. The Washington makes a lasting first impression before you even step inside. The main level is designed for the way people live today-open, connected, and full of natural gathering spaces. The spacious gathering room flows seamlessly into a well-appointed kitchen with a large center island, creating the perfect place for everything from casual weeknight dinners to hosting family and friends. Flexible spaces on the main level provide room for a home office, study, or additional living area to fit your lifestyle. Upstairs, the private owner's suite serves as a peaceful retreat, featuring a generous walk-in closet and a well-designed bath with dual vanities and a spacious shower. Additional bedrooms offer plenty of room for family and guests, while the conveniently located laundry room simplifies everyday living. Thoughtfully designed and beautifully appointed, the Washington offers the comfort, space, and flexibility that make a house truly feel like home.
Based on current rates
Est. 6.09% rate · 30yr fixed · $547,992 loan
Full calculator →Key facts and listing details
1 category of property features
6 rooms detailed
Dining Room
Family Room
Guest Room
Living Room
Loft
Other
Market data and value estimates
3 schools rated nearby
Brunswick, MD, 21716
1 event
Local context around this listing
Brunswick, MD • Frederick County
Nearby cities
Nearby zip codes
No obligation · Same-day response