Loading...

Folsom, CA, 95630 • 95630 • Sacramento County
$392/sqft
5Beds
4Baths
3,685Sqft
2026Built
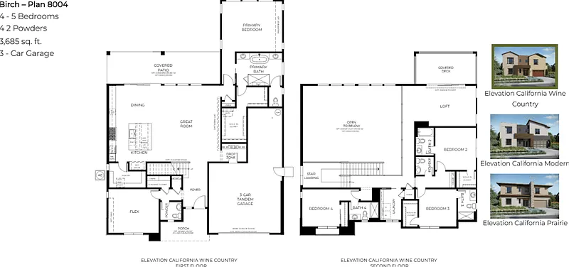
SHAWOOD at Folsom
95630
3-Car Garage
Garage
Just Listed
Listed Apr 7, 2026
Demand and pricing signals for this listing
25 views
People checking out this listing
$392/sqft
Price per square foot
Single Family · Built 2026
Birch offers elegance and functionality, ideal for families who love to entertain. With a primary bedroom on the main floor, a covered deck upstairs, and a Kokage stair landing designed to feel as though you are resting "under the shade of trees," this home takes relaxation to a new level. The super pantry and spacious loft provide both storage and versatility. Please call us at 916-237-1220 to set up an appointment.
Standout features identified
Our analysis highlights spacious loft, covered deck upstairs, and super pantry as key attractions of this home.
Based on current rates
Est. 6.35% rate · 30yr fixed · $1,155,992 loan
Full calculator →Key facts and listing details
1 category of property features
Market data and value estimates
3 schools rated nearby
Folsom, CA, 95630
1 event
Local context around this listing
Folsom, CA • Sacramento County
Nearby neighborhoods
Nearby cities
Nearby zip codes
No obligation · Same-day response