Loading...

Beaverton, OR, 97008 • Highland • Washington County
$277/sqft
3Beds
2Baths
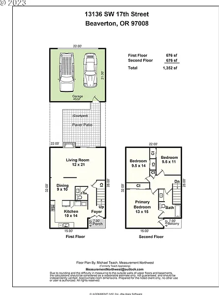
1,352Sqft
0.04 acLot
1968Built
Trees/Woods Views
Trees/Woods
Mount Vernon Villiage
Insurance · Maintenance Grounds · Management
Outdoor Living
Patio
1 Fireplace
Wood Burning
2-Car Garage
Other · Garage Door Opener · Detached
Premium Finishes
Granite
Hardwood & Tile Floors
Quality flooring throughout
$626/mo HOA
Insurance · Maintenance Grounds · Management · Meeting Room
Demand and pricing signals for this listing
5 views
People checking out this listing
845 days on market
Established listing
$277/sqft
Price per square foot
Single Family · Built 1968
Premium Quality, Affordably Priced & Prime Location. Endless list of new updated/upgrades! Refinished hardwood floors throughout living spaces & new tile floors in baths/ entry & kitchen. New interior paint, new interior doors, new front doors, new crown molding throughout, ductless heating & cooling, new electrical panel, new window treatments & new light fixtures. Kitchen remodeled with new cabinets, granite counters, tile backsplash, tile floors, stainless appliances & floating shelves. Baths remodeled with new cabinets, tile floors, new toilets, new hardware & new mirrors. Living room has fireplace with new porcelain tile and mantel. Courtyard has extended patio area & new steps down making a completely private relaxing area and allowing access to the oversized double garage. HOA Dues includes water, sewer & trash . Great quiet/private location in complex.
Standout features identified
Our analysis highlights premium quality, new interior paint, and new cabinets as key attractions of this home.
Based on current rates
Est. 6.17% rate · 30yr fixed · $300,000 loan
Full calculator →Key facts and listing details
15 categories of property features
6 rooms detailed
Master Bedroom
UpperBedroom2
UpperBedroom3
UpperDining Room
MainKitchen
MainLiving Room
MainMarket data and value estimates
3 schools rated nearby
Beaverton, OR, 97008
9 events
26 years of records
Local context around this listing
Beaverton, OR • Washington County
Nearby neighborhoods
Nearby cities
Nearby zip codes
The content relating to real estate for sale on this web site comes in part from the IDX program of the RMLS™ of Portland, Oregon. Real estate listings held by brokerage firms other than Zillow, Inc. are marked with the RMLS™ logo, and detailed information about these properties includes the names of the listing brokers. Listing content is copyright © 2026 RMLS™, Portland, Oregon. This content last updated on 2026-04-08 02:29:03 PDT. Some properties which appear for sale on this web site may subsequently have sold or may no longer be available. All information provided is deemed reliable but is not guaranteed and should be independently verified.
No obligation · Same-day response