Loading...

Seattle, WA, 98146 • 98146 • King County
1.4 acLot
White Center
98146
Demand and pricing signals for this listing
1 views
People checking out this listing
238 days on market
Established listing
Lot
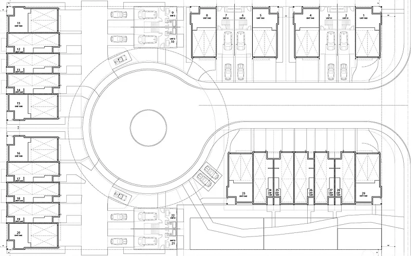
This 1.38-acre site in White Center under King County jurisdiction offers an excellent development opportunity for a 24-34 home community. The flexibility for either zero lot line lots or townhomes provides options depending on the desired unit sizes and target market. Prime vacant/level building site for single-family or townhome plat. Walking distance to Mount View Elementary, proximate to White Center Library, shopping, dining and recreation. Well located for access to Sea Tac Airport & South Center (12 min) and Downtown Seattle (20 minutes).
Based on current rates
Est. 6.19% rate · 30yr fixed · $2,200,000 loan
Full calculator →Key facts and listing details
2 categories of property features
Market data and value estimates
3 schools rated nearby
Seattle, WA, 98146
3 events
21 years of records
Local context around this listing
Seattle, WA • King County
Nearby neighborhoods
Nearby cities
Nearby zip codes
Based on information submitted to the MLS GRID as of 2026-04-07 07:18:41 PDT. All data is obtained from various sources and may not have been verified by broker or MLS GRID. Supplied Open House Information is subject to change without notice. All information should be independently reviewed and verified for accuracy. Properties may or may not be listed by the office/agent presenting the information. [Click here for more information](/mls-disclaimers/#39)
No obligation · Same-day response