Loading...

Olympia, WA, 98502 • 98502 • Thurston County
$308/sqft
3Beds
4Baths
4,064Sqft
0.52 acLot
2006Built
Waterfront Property
Low Bank, Bulkhead, Lake
Lake Views
Lake
Summit Lake
98502
Outdoor Living
Second Kitchen · Bath Off Primary · Built-In Vacuum · Double Pane/Storm Window · Dining Room · Fireplace · Fireplace (Primary Bedroom) · Security System · Walk-In Closet(s) · Walk-In Pantry
3 Fireplaces
Gas · Main Level: 1 · Upper Level: 2 · Fireplace
5-Car Garage
Driveway · Attached Garage · Detached Garage
Ceramic Tile Floors
Quality flooring throughout
Demand and pricing signals for this listing
26 views
People checking out this listing
1 saves
Buyers have saved this home
241 days on market
Established listing
$308/sqft
Price per square foot
Single Family · Built 2006
A Builders Custom home on SUMMIT LAKE w/ about 60' Direct WATERFRONT & private dock; MAIN home provides custom island kitchen, w/in pantry; custom cabinets, granite slab & gas cooking; open concept family room; bedroom on MAIN. Upstairs; Primary w/ Juliet balcony taking in the LAKE; gas fireplace. Upper level utility room; bonus /bunk room & hall bath. Tons of storage, Fully fenced w/ 24 ft dock; outdoor entertaining areas; boat house w/ ramp; no bank beach frontage. A true HIGH END waterfront home.
Based on current rates
Est. 6.19% rate · 30yr fixed · $1,000,000 loan
Full calculator →Key facts and listing details
13 categories of property features
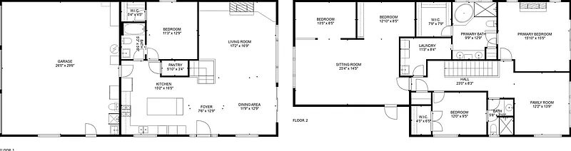
13 rooms detailed
Master Bedroom
Bedroom
Bedroom
MainBathroom Full
Bathroom Full
MainBathroom Three Quarter
Market data and value estimates
3 schools rated nearby
Olympia, WA, 98502
12 events
23 years of records
Local context around this listing
Olympia, WA • Thurston County
Nearby cities
Nearby zip codes
Based on information submitted to the MLS GRID as of 2026-04-07 08:03:28 PDT. All data is obtained from various sources and may not have been verified by broker or MLS GRID. Supplied Open House Information is subject to change without notice. All information should be independently reviewed and verified for accuracy. Properties may or may not be listed by the office/agent presenting the information. [Click here for more information](/mls-disclaimers/#39)
No obligation · Same-day response