Loading...

Washington, DC, 20017 • Brookland • District of Columbia
$317/sqft
5Beds
3Baths
3,000Sqft
0.17 acLot
1900Built
Character Home
Built 1900 · 126 years of history
Hardwood Floors
Quality flooring throughout
Demand and pricing signals for this listing
9 views
People checking out this listing
2 saves
Buyers have saved this home
6135 days on market
Established listing
$317/sqft
Price per square foot
Single Family · Built 1900 · Historic
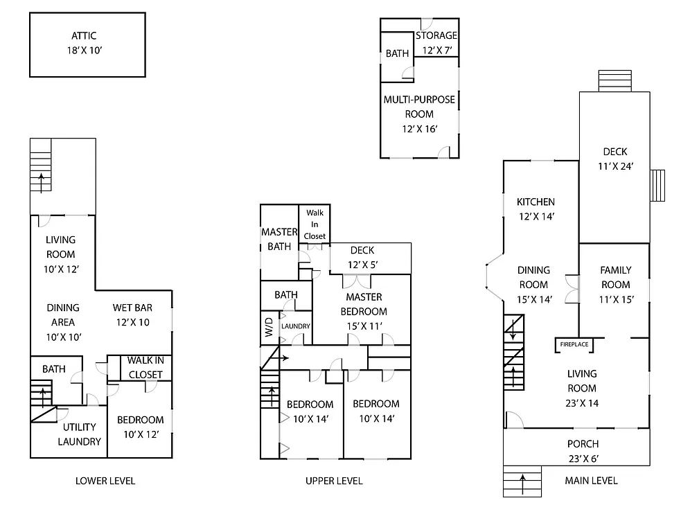
Welcome home to this beautiful 4 bedroom, 3 bath farm house in D.C. s iconic Brookland neighborhood. The property includes a basement level in-law suite and an office/multipurpose room with storage space in the backyard. Only 1.5 blocks to the red line CUA-Brookland Metro, a 20 minutes commute to downtown DC. Photos: https www.tourbuzz.net/1117397 Main Level: The sunny main level plays host to beautiful wood finishes, built in bookshelves, gas fireplace, and an open concept living, dining and family room areas with freshly painted walls, and an updated large kitchen with a stainless-steel appliances. The kitchen leads out to a large two-level deck and one of the largest backyards in Brookland. Upper Level: 3 bedrooms and 2 full baths with laundry and large closets in all bedrooms. The master bedroom boasts a large master bath, walk-in closet and deck overlooking the expansive backyard. Attic with a ton of storage space. Basement: 1 bedroom, 1 bath, with wet bar, dining and living room, and radiant heat hydraulic floors which keeps the basement warm even in the coldest days of winter. Heating and cooling are controlled separately. Separate entrance for easy access and use as an in-law suite. Office / Multipurpose room: Garage has been converted into an office / multi-purpose room with a storage area. Perfectly located in the heart of Brookland, walking distance from neighborhood staples like Primrose, Brookland s Finest, Bus Boys & Poets, Starbucks, Catholic University Bookstore, Alice s Jazz and Cultural Society. Wonderful family neighborhood with lots of children, a great library, Turkey Thicket park and the beautiful gardens of the Franciscan Monastery. Charter schools within walking distance include Elsie Whitlow Stokes, Shining Stars Montessori, Latin American Bilingual (LAMB) South Dakota Campus, Lee Montessori, Inspired Teaching and a Mundo Verde second campus coming soon. The monthly rent is $4900/mo. For more information, please call 202-213-6598 House will be available for rent starting January or February 2019. Utilities are not included in the rent - tenants must set them up in their own name.
Based on current rates
Est. 6.75% rate · 30yr fixed · $760,800 loan
Full calculator →Key facts and listing details
6 categories of property features
4 rooms detailed
Breakfast Nook
Family Room
Master Bath
Office
Market data and value estimates
3 schools rated nearby
Washington, DC, 20017
10 events
23 years of records
Local context around this listing
Washington, DC • District of Columbia
Nearby neighborhoods
Nearby cities
Nearby zip codes
No obligation · Same-day response