Loading...

Swansea, IL, 62226 • 62226 • Saint Clair County
$125/sqft
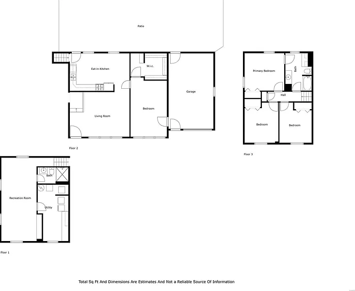
4Beds
2Baths
1,924Sqft
0.19 acLot
1961Built
Traditional Style
Built 1961 · 65 years of history
Lakeland Village
62226
Outdoor Living
Patio
1-Car Garage
Attached · Garage
Demand and pricing signals for this listing
3 views
People checking out this listing
667 days on market
Established listing
$125/sqft
Price per square foot
Single Family · Built 1961
Welcome home to this charming 4-bedroom tri-level nestled in the sought-after Wolf Branch School District! Boasting a thoughtful layout, this residence offers convenience and comfort at every turn. Step inside to discover a spacious main level featuring the master bedroom, providing a retreat-like ambiance for relaxation and privacy. Upstairs, three generously sized bedrooms await, ensuring ample space for family members or guests. Outside, the enchanting landscaped fenced and vibrant perennials, creating a picturesque backdrop for outdoor gatherings. A newer patio offers the perfect spot for al fresco dining or simply soaking up the sunshine. For added versatility, the finished basement presents a cozy family room, ideal for movie nights or entertaining, along with a large laundry room to streamline household chores. With its abundance of space and delightful curb appeal, this home is not to be missed! Schedule a showing today and experience comfortable living in a prime location.
Based on current rates
Est. 6.88% rate · 30yr fixed · $192,000 loan
Full calculator →Key facts and listing details
7 categories of property features
Market data and value estimates
3 schools rated nearby
Swansea, IL, 62226
17 events
15 years of records
Local context around this listing
Swansea, IL • Saint Clair County
Nearby cities
Nearby zip codes
IDX information is provided exclusively for personal, non-commercial use, and may not be used for any purpose other than to identify prospective properties consumers may be interested in purchasing. Information is deemed reliable but not guaranteed. Some IDX listings have been excluded from this website. [Click here for more information](/mls-disclaimers/#197)
No obligation · Same-day response