Loading...

Portland, OR, 97233 • 97233 • Multnomah County
$407/sqft
3Beds
1Baths
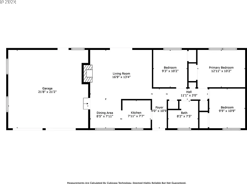
946Sqft
0.16 acLot
1964Built
Ranch Style
Built 1964 · 62 years of history
1 Fireplace
Wood Burning
2-Car Garage
Driveway · On Street · Attached
Hardwood & Tile Floors
Quality flooring throughout
This home is in high demand
Listed 693 days ago · 262 views · Top 1% likely to sell soon
Demand and pricing signals for this listing
262 views
People checking out this listing
693 days on market
Established listing
$407/sqft
Price per square foot
This home ranks in the top 1% of listings most likely to go under contract soon, based on market activity and demand signals.
Want the full market analysis?
Get the detailed selling prediction score, comparable sales data, and price trend forecast for this property.
Free · Delivered to your inbox in minutes
Single Family · Built 1964
Fall in love with this freshly remolded ranch-style home for under 400k! This 3 bed, 1 bath, 946sqft offers a spacious living room w/wood burning fire place, a freshly remodeled kitchen with all new stainless steel appliances, new vinyl windows, new tile work, new bathroom, new lighting, new driveway, new paint, and more. Outside you have a massive full fenced backyard with endless possibilities ready for you to turn it into your dream oasis. Come see it for yourself!
Standout features identified
Our analysis highlights wood burning fire place, freshly remodeled kitchen, and new paint as key attractions of this home.
Based on current rates
Est. 6.17% rate · 30yr fixed · $308,000 loan
Full calculator →Key facts and listing details
9 categories of property features
5 rooms detailed
Master Bedroom
MainBedroom2
MainBedroom3
MainDining Room
MainKitchen
MainMarket data and value estimates
3 schools rated nearby
Portland, OR, 97233
14 events
25 years of records
Local context around this listing
Portland, OR • Multnomah County
Nearby neighborhoods
Nearby cities
Nearby zip codes
The content relating to real estate for sale on this web site comes in part from the IDX program of the RMLS™ of Portland, Oregon. Real estate listings held by brokerage firms other than Zillow, Inc. are marked with the RMLS™ logo, and detailed information about these properties includes the names of the listing brokers. Listing content is copyright © 2026 RMLS™, Portland, Oregon. This content last updated on 2026-04-09 01:34:01 PDT. Some properties which appear for sale on this web site may subsequently have sold or may no longer be available. All information provided is deemed reliable but is not guaranteed and should be independently verified.
No obligation · Same-day response