Loading...

Carson City, NV, 89706 • 89706 • Carson City
$134/sqft
Down payment assistance available
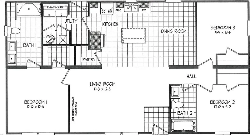
3Beds
2Baths
1,264Sqft
1.4 acLot
2025Built
This home is getting attention
Listed 214 days ago · 1,992 views · 85 saves
Demand and pricing signals for this listing
1,992 views
People checking out this listing
85 saves
Buyers have saved this home
214 days on market
Established listing
$134/sqft
Price per square foot
Manufactured · Built 2025
Brand New, modern, Energy Star certified home in a highly sought-after, privately owned parcel. No age restrictions! The open floor plan features 9-foot ceilings, 80-inch windows in living areas, stainless-steel Samsung appliances designed for energy efficiency and comfort, complemented by low-E windows, a smart thermostat, and 2x6 exterior walls with additional insulation to help lower utility bills. New air conditioner and shed. Includes a 1-year limited factory warranty and a 1-year appliance warranty.
Based on current rates
Est. 6.75% rate · 30yr fixed · $135,920 loan
Full calculator →Key facts and listing details
3 categories of property features
Market data and value estimates
3 schools rated nearby
Carson City, NV, 89706
4 events
24 years of records
Local context around this listing
Carson City, NV • Carson City
Nearby cities
Nearby zip codes
No obligation · Same-day response