Loading...

Lorain, OH, 44053 • 44053 • Lorain County
$129/sqft
4Beds
3Baths
3,188Sqft
0.25 acLot
2005Built
Waterfront Property
Direct water access
Water Views
Water
Hardwood Floors
Quality flooring throughout
Demand and pricing signals for this listing
4 views
People checking out this listing
2875 days on market
Established listing
$129/sqft
Price per square foot
Single Family · Built 2005
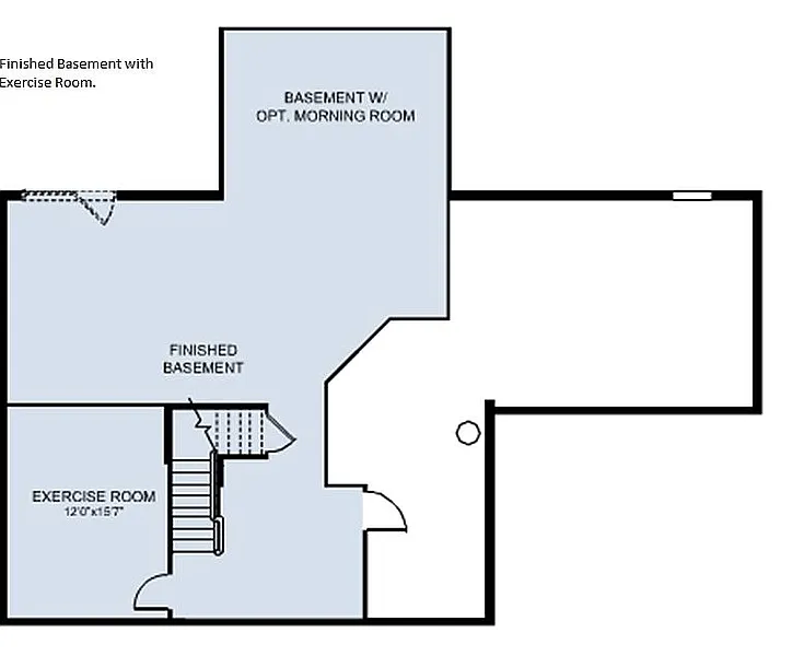
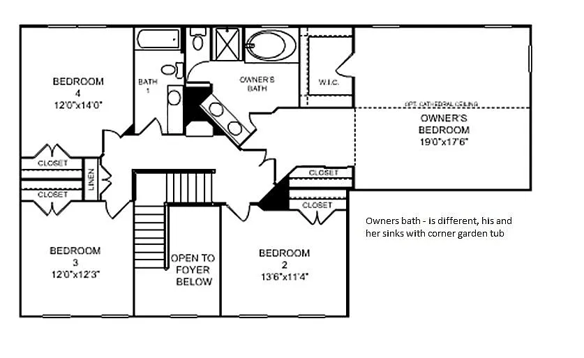
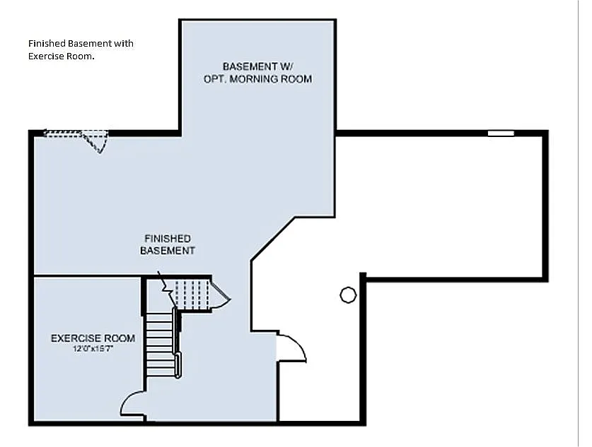
Prepare to move — into this beautiful executive colonial overlooking the pond in the coveted Deerfield Estates neighborhood, located in Lorain, OH, and the award-winning Amherst school district. This house boasts some serious curb appeal with all new landscaping installed in 2019. Step inside the impressive, two-story foyer that fills with light from oversized windows. New hardwood floors extend from the foyer through to the kitchen where you’ll find stainless steel appliances and granite countertops. Off the kitchen, the extra-large morning room comfortably fits a table to seat 12 — perfect for entertaining. Off the kitchen, the oversized living room is perfect for relaxing. The first floor also has space for a formal dining room and a formal living room, though the current homeowners thought this was a great space for a children’s play room. An office, laundry room, and recently updated half bath round out the first floor. On the second floor, you’ll find three bedrooms, a full bath, and the master suite. The oversized master suite has vaulted ceilings, two closets, and an attached bath with his & hers vanities, a shower, soaking tub, and private water closet. Out back, a beautiful stamped concrete patio overlooks the pond. The fully-fenced yard also includes a custom shed with built-in bar and roll-up window. With more than 4,000 square feet of living space, including a finished basement with plumbing for a full bath and plenty of storage, there’s plenty of room for the whole family — and entertaining friends, too!
Based on current rates
Est. 6.24% rate · 30yr fixed · $328,560 loan
Full calculator →Key facts and listing details
8 categories of property features
9 rooms detailed
Walk In Closet
Dining Room
Family Room
Laundry Room
Master Bath
Office
Market data and value estimates
3 schools rated nearby
Lorain, OH, 44053
18 events
19 years of records
Local context around this listing
Lorain, OH • Lorain County
Nearby cities
Nearby zip codes
No obligation · Same-day response