Loading...

Coos Bay, OR, 97420 • 97420 • Coos County
$230/sqft
2Beds
2Baths
1,897Sqft
5.6 acLot
2007Built
Waterfront Property
Direct water access
Scenic Views
Water · Mountain
Demand and pricing signals for this listing
4 views
People checking out this listing
7024 days on market
Established listing
$230/sqft
Price per square foot
Single Family · Built 2007
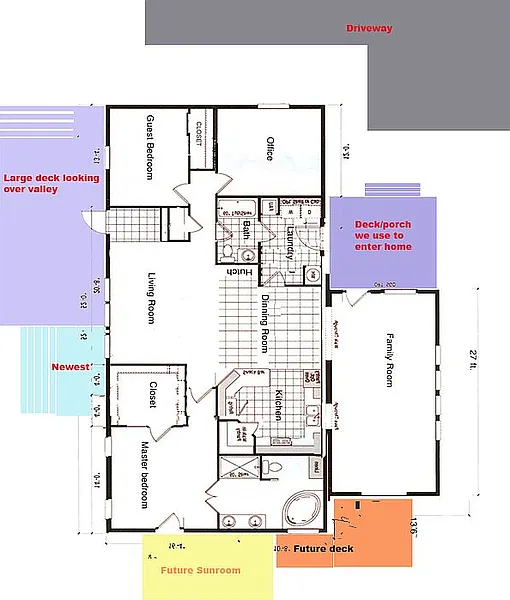
This 1897 square foot single family home has 2 bedrooms and 2.0 bathrooms. This home is located at 63104 Daniels Creek Rd, Coos Bay, OR 97420.
Based on current rates
Est. 6.25% rate · 30yr fixed · $348,800 loan
Full calculator →Key facts and listing details
6 categories of property features
10 rooms detailed
Walk In Closet
Dining Room
Family Room
Laundry Room
Master Bath
Mud Room
Market data and value estimates
3 schools rated nearby
Coos Bay, OR, 97420
2 events
24 years of records
Local context around this listing
Coos Bay, OR • Coos County
Nearby cities
Nearby zip codes
No obligation · Same-day response