Loading...

Moneta, VA, 24121 • 24121 • Bedford County
$406/sqft
5Beds
3Baths
2,700Sqft
1 acLot
1998Built
Conventional Style
Built 1998 · 28 years of history
Demand and pricing signals for this listing
3 views
People checking out this listing
5811 days on market
Established listing
$406/sqft
Price per square foot
Single Family · Built 1998
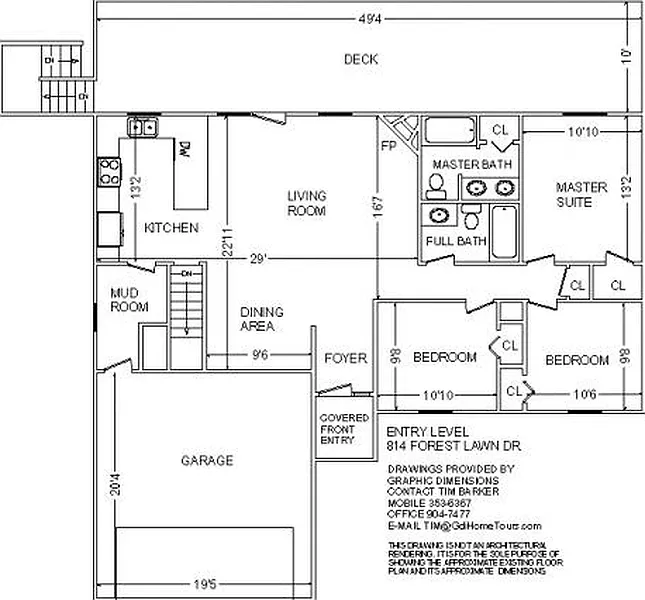
Great Buy on this Waterfront Home w/an Open Floor Plan & Main Channel Views! Home is located on 1.03 acres w/118ft of Waterfront, Covered Boat Dock w/Party Deck & Storage Area. Recently Remodeled w/Granite Countertops, Tile Backsplash & New Paint Throughout. Amenities include Boat Ramp, Playground, Tennis Courts, and Clubhouse w/Racquetball & Sauna. PRICED TO SELL AT $106,000 BELOW TAX ASSESSMENT!
Based on current rates
Est. 6.24% rate · 30yr fixed · $877,600 loan
Full calculator →Key facts and listing details
6 categories of property features
Market data and value estimates
3 schools rated nearby
Moneta, VA, 24121
9 events
25 years of records
Local context around this listing
Moneta, VA • Bedford County
Nearby cities
Nearby zip codes
No obligation · Same-day response