Loading...

Lewis Center, OH, 43035 • 43035 • Delaware County
$162/sqft
3Beds
2.5Baths
1,755Sqft
2007Built
Conventional Style
Built 2007 · 19 years of history
Demand and pricing signals for this listing
3 views
People checking out this listing
1303 days on market
Established listing
$162/sqft
Price per square foot
Apartment · Built 2007
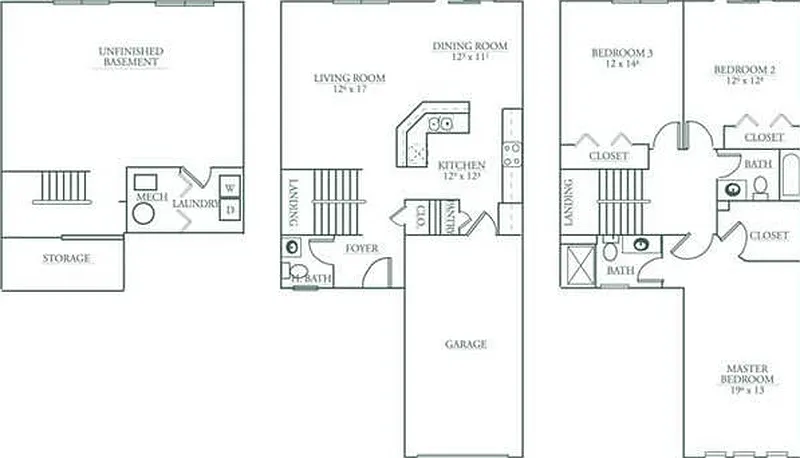
Beautiful 3 bed/2.5 bath home in Olentangy School District. Near Polaris and Chase! Open concept living area with a big kitchen and stainless steal refrigerator, stove, and microwave. Has a huge master bedroom and an unfinished basement for storage and laundry hook-ups. Community has a pool and work out facility! Available to move in September 1st! Tenant pays utilities.
Based on current rates
Est. 6.28% rate · 30yr fixed · $227,600 loan
Full calculator →Key facts and listing details
5 categories of property features
Market data and value estimates
3 schools rated nearby
Lewis Center, OH, 43035
8 events
18 years of records
Local context around this listing
Lewis Center, OH • Delaware County
Nearby cities
Nearby zip codes
No obligation · Same-day response