Loading...

Lexington, KY, 40509 • 40509 • Fayette County
$195/sqft
3Beds
3Baths
2,468Sqft
0.12 acLot
2015Built
Demand and pricing signals for this listing
6 views
People checking out this listing
3782 days on market
Established listing
$195/sqft
Price per square foot
Townhouse · Built 2015
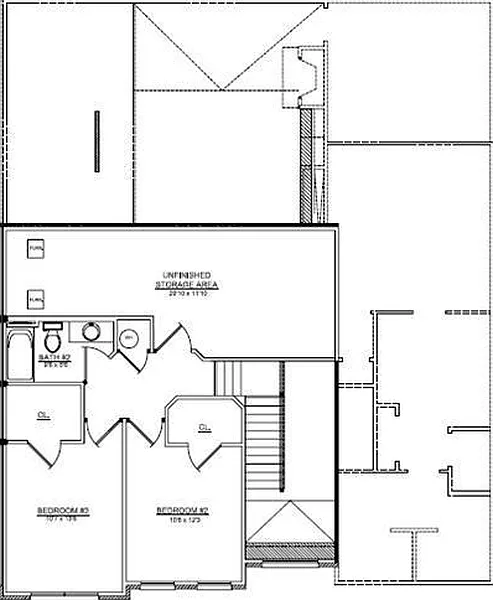
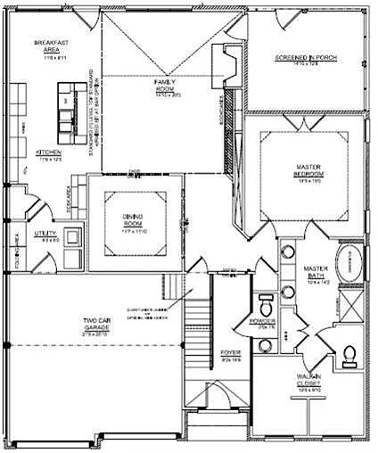
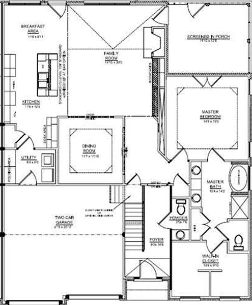
The Florence II is an optional version of the Florence. Like the original plan, this two-story townhome has a downstairs master suite, plus two bedrooms upstairs. In the standard plan, the master and family room adjoin a screened porch. Three upstairs layout options are available on this version: a full or partial loft and an attic storage option. Cased openings frame the dining room. Other changes include a revised kitchen layout with an optional corner desk, optional wine bar and three layout choices for the island. Other plan changes include raised vanities in all baths, a floor outlet included in the family room, and a revised exterior that replaces the dormer on the original with a flush brick exterior.
Based on current rates
Est. 6.75% rate · 30yr fixed · $385,120 loan
Full calculator →Key facts and listing details
7 categories of property features
2 rooms detailed
Walk In Closet
Dining Room
Market data and value estimates
3 schools rated nearby
Lexington, KY, 40509
6 events
15 years of records
Local context around this listing
Lexington, KY • Fayette County
Nearby neighborhoods
Nearby cities
Nearby zip codes
No obligation · Same-day response