Loading...

Charlottesville, VA, 22901 • 22901 • Albemarle County
$2/sqft
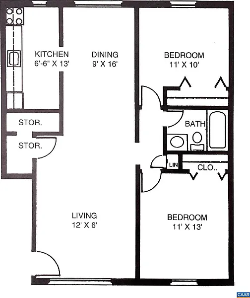
2Beds
1Baths
900Sqft
Demand and pricing signals for this listing
13 views
People checking out this listing
2 saves
Buyers have saved this home
15 days on market
Recently listed
$2/sqft
Price per square foot
Apartment
Discover Fountain Court Apartments an inviting community nestled in the heart of Charlottesville, VA, on E. Rio Rd. Experience the perfect blend of comfort and convenience with thoughtfully designed one- and two-bedroom apartments featuring spacious layouts, classic kitchens, and in-unit laundry facilities. Enjoy high-speed internet, on-site parking, 24-hour maintenance, and a smoke-free environment. Just minutes from the University of Virginia, Piedmont Virginia Community College, and downtown Charlottesville's vibrant dining and entertainment scene, Fountain Court offers unbeatable access to everything you need. Schedule your tour today and find your next home at Fountain Court Apartments! Welcome home to this spacious 2-bedroom, 1-bath apartment featuring a comfortable carpeted living room and bedrooms. The kitchen is fully equipped with a dishwasher, microwave, range, and full-sized refrigerator ideal for everyday living and entertaining. Both cats and dogs are welcome, making this the perfect home for pet lovers (breed restrictions apply). Relax knowing your needs are covered. $160 monthly utility fee covers Ting fiber internet, water/sewer, and trash
Standout features identified
Our analysis highlights in-unit laundry facilities, on-site parking, and spacious layouts as key attractions of this home.
Based on current rates
Est. 6.75% rate · 30yr fixed · $1,300 loan
Full calculator →Key facts and listing details
4 categories of property features
Market data and value estimates
3 schools rated nearby
Charlottesville, VA, 22901
1 event
25 years of records
Local context around this listing
Charlottesville, VA • Albemarle County
Nearby neighborhoods
Nearby cities
Nearby zip codes
No obligation · Same-day response