Loading...

Bloomington, IN, 47401 • Sherwood Oaks • Monroe County
$212/sqft
3Beds
2Baths
1,941Sqft
0.27 acLot
1989Built
Ranch, One Story Style
Built 1989 · 37 years of history
Demand and pricing signals for this listing
4 views
People checking out this listing
2119 days on market
Established listing
$212/sqft
Price per square foot
Single Family · Built 1989
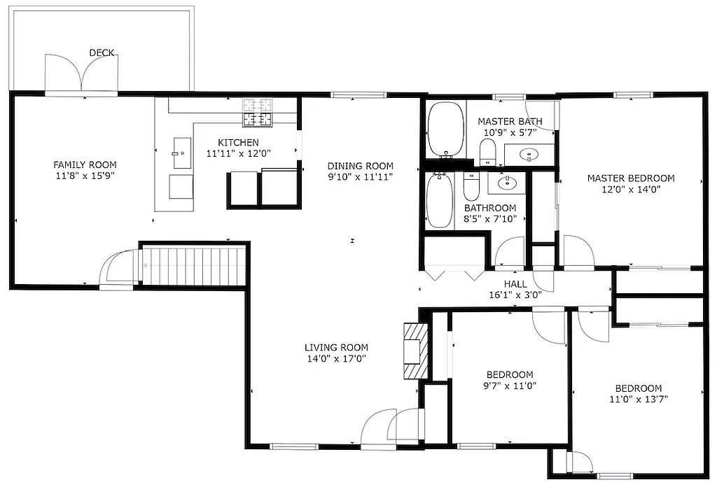
Nestled in the sweet spot of Bloomington, this charming 3 bedroom, 2 bathroom rambler over basement in Sherwood Oaks II shows pride in ownership, and is move-in ready! Updates include: new roof, new deck, hardwood flooring upstairs and multi-purpose flooring in basement, new lighting throughout, bathroom updates and so much more. The backyard was also fenced in 2017 and the front has been beautifully landscaped. Amazing deck space for entertaining, and a charming apple tree shade the backyard on those sticky summer days. Stunning perennials give this house charming curb appeal. This main level offers a formal living room, a dining room, a kitchen that opens to a den, a master suite, two guest bedrooms, and a guest full bath. The kitchen was recently updated with granite counters, stainless steel appliances, new cabinets, and new flooring. The basement includes a massive, open family room, incredible indoor storage space both under the stairs and in the 77 square foot, insulated-but-unfinished utility room with built in storage that is adjacent to a bonus room. The seller is currently using the bonus room as a home office. Elementary and middle schoolers to school need only take a short bike-ride through the picturesque Sherwood Oaks Park and Olcott Parks to get to the highly-sought Child's Elementary, Jackson Creek Middle School, Bloomington South High School and the amazing Southeast YMCA. Easy access to Walnut for a short 12-15 minute drive to the Indiana University campus. You'll love living here!
Based on current rates
Est. 6.26% rate · 30yr fixed · $329,120 loan
Full calculator →Key facts and listing details
9 categories of property features
2 rooms detailed
Dining Room
Family Room
Market data and value estimates
3 schools rated nearby
Bloomington, IN, 47401
7 events
18 years of records
Local context around this listing
Bloomington, IN • Monroe County
Nearby neighborhoods
Nearby cities
Nearby zip codes
No obligation · Same-day response