Loading...

New Castle, PA, 16105 • 16105 • Lawrence County
$128/sqft
4Beds
3Baths
2,726Sqft
1 acLot
2000Built
Colonial,Two Story Style
Built 2000 · 26 years of history
1 Fireplace
Decorative
Garage
Attached · Garage · Garage Door Opener
Ceramic Tile & Hardwood Floors
Quality flooring throughout
This home is in high demand
Listed 708 days ago · 17 views · 1 saves · Top 1% likely to sell soon
Demand and pricing signals for this listing
17 views
People checking out this listing
1 saves
Buyers have saved this home
708 days on market
Established listing
$128/sqft
Price per square foot
This home ranks in the top 1% of listings most likely to go under contract soon, based on market activity and demand signals.
Want the full market analysis?
Get the detailed selling prediction score, comparable sales data, and price trend forecast for this property.
Free · Delivered to your inbox in minutes
Single Family · Built 2000
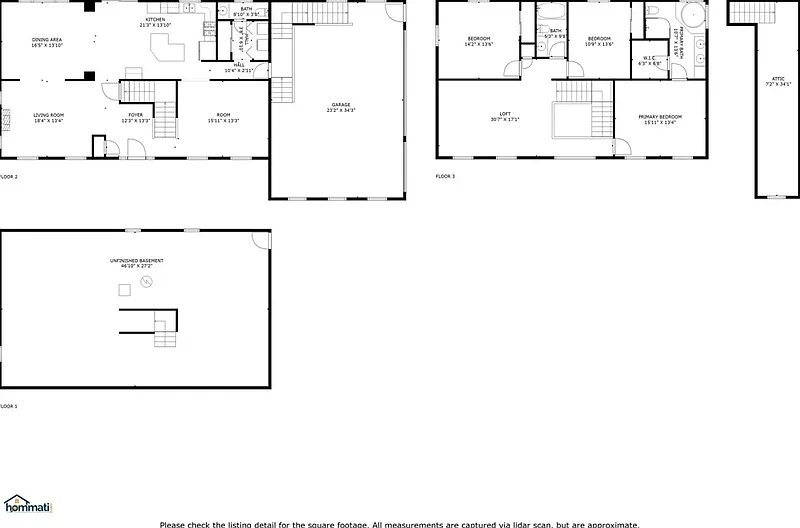
Your patience pays! The level acre, newer build with a 3 car garage you would never find? Home is right here! Huge 3 car attached garage with storage above..a doorway up & into your spacious 1st floor or walk down a few stairs directly into the homes 1347 sq ft lower level waiting for your finishing touches! Your guests arrive at your front door via custom concrete walk. The property & driveway extend all the way to the street. #2 bedroom 14x11 is currently a loft - add one wall with a door it becomes a bedroom! Truly move in. The garage has Walk up storage that awaits your completion as you choose! Lower level is rushed in awaiting your finishing.
Standout features identified
Our analysis highlights newer build, lower level, and walk up storage as key attractions of this home.
Based on current rates
Est. 6.11% rate · 30yr fixed · $280,000 loan
Full calculator →Key facts and listing details
10 categories of property features
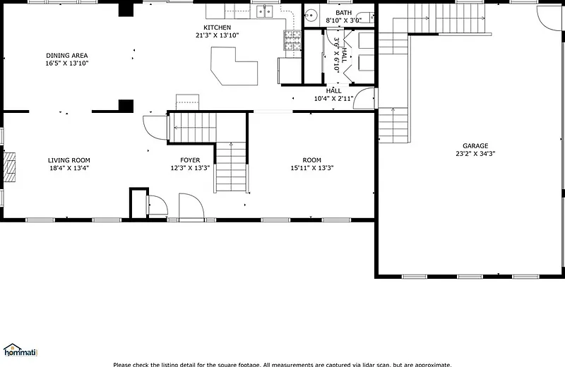
11 rooms detailed
Master Bedroom
UpperBedroom2
UpperBedroom3
UpperBedroom4
UpperDining Room
MainEntry Foyer
MainMarket data and value estimates
2 schools rated nearby
New Castle, PA, 16105
7 events
15 years of records
Local context around this listing
New Castle, PA • Lawrence County
Nearby neighborhoods
Nearby cities
Nearby zip codes
Listing information is provided exclusively for personal, non-commercial use, and may not be used for any purpose other than to identify prospective properties consumers may be interested in purchasing. Information is deemed reliable but not guaranteed.
No obligation · Same-day response