Loading...

Painesville, OH, 44077 • 44077 • Lake County
$175/sqft
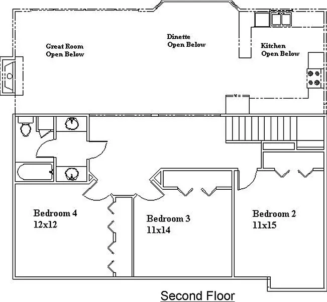
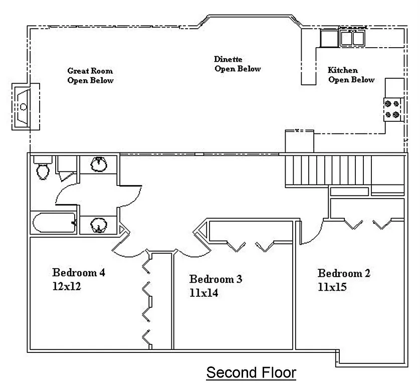
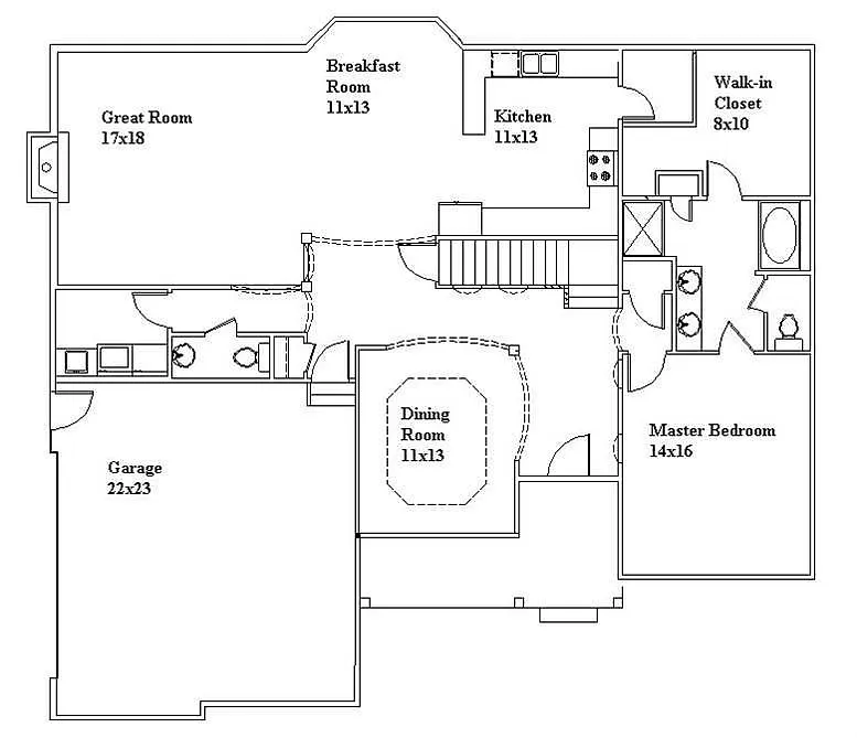
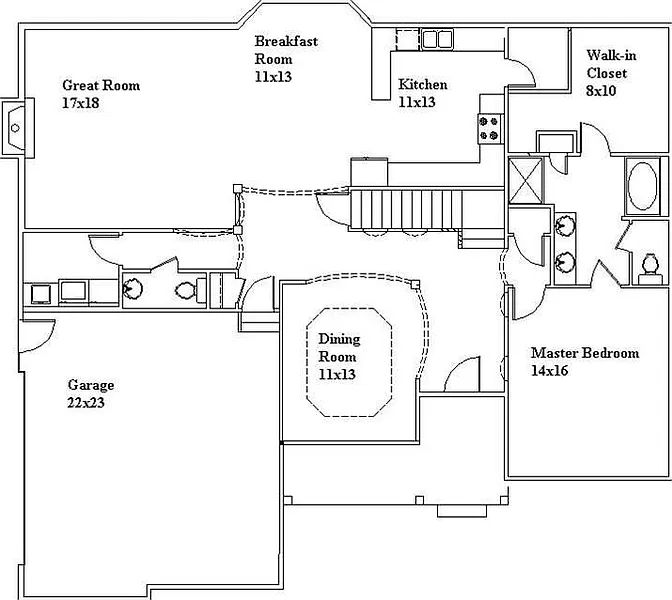
4Beds
2.5Baths
2,645Sqft
1.1 acLot
2007Built
Contemporary Style
Built 2007 · 19 years of history
Demand and pricing signals for this listing
2 views
People checking out this listing
5623 days on market
Established listing
$175/sqft
Price per square foot
Single Family · Built 2007
Built by River Oaks Homes. 4 BR, 2.5 BA Colonial in a prestigious, private area! Vaulted, 2-story great rm w/fp, dinette & granite kitchen w/pantry! 1st flr master w/bath, 1st flr laundry rm, formal dining rm., full walk-out bsmt, deck, patio, 2 car gar 1 acre wooded lot on cul-de-sac street.
Based on current rates
Est. 6.24% rate · 30yr fixed · $371,120 loan
Full calculator →Key facts and listing details
4 categories of property features
1 room detailed
Family Room
Market data and value estimates
3 schools rated nearby
Painesville, OH, 44077
4 events
26 years of records
Local context around this listing
Painesville, OH • Lake County
Nearby cities
Nearby zip codes
No obligation · Same-day response