Loading...

Bakersfield, CA, 93306 • Rio Bravo • Kern County
$205/sqft
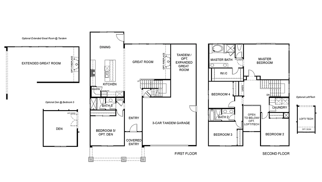
5Beds
3Baths
2,519Sqft
0.31 acLot
2017Built
Demand and pricing signals for this listing
9 views
People checking out this listing
1260 days on market
Established listing
$205/sqft
Price per square foot
Single Family · Built 2017
The property is located at 15509 Via Bassano Drive Bakersfield CA 93306 priced at 299900.00, the square foot and stories are 2519, 2. The number of bath is 3, halfbath is 0 there are 5 bedrooms and 2 garages. For more details please, call or email.
Based on current rates
Est. 6.01% rate · 30yr fixed · $412,560 loan
Full calculator →Key facts and listing details
4 categories of property features
Market data and value estimates
3 schools rated nearby
Bakersfield, CA, 93306
15 events
19 years of records
Local context around this listing
Bakersfield, CA • Kern County
Nearby neighborhoods
Nearby cities
Nearby zip codes
No obligation · Same-day response