Loading...

Marion, OH, 43302 • 43302 • Marion County
$117/sqft
Down payment assistance available
3Beds
3Baths
1,408Sqft
0.13 acLot
1890Built
Character Home
Built 1890 · 136 years of history
Outdoor Living
Deck
2-Car Garage
Detached
This home is getting attention
Listed 52 days ago · 636 views · 42 saves
Demand and pricing signals for this listing
636 views
People checking out this listing
42 saves
Buyers have saved this home
52 days on market
Established listing
$117/sqft
Price per square foot
Single Family · Built 1890 · Historic
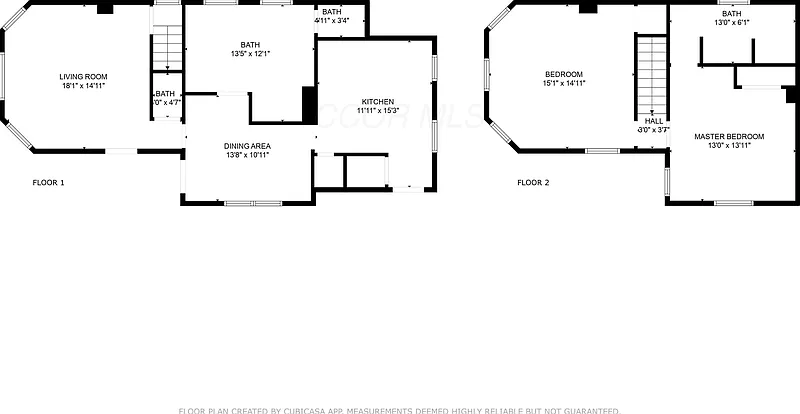
This unique property containing 2 bedrooms and 1 full bath upstairs and a Guest Bed and bath on the first floor. The property is currently rented. There is a 2 car detached garage and ample parking off street. Located half mile from the Marion County Fairgrounds. Officially listed as a 3 bedroom 2.5 bathrooms, but there are some unique features to these bathrooms. Since it was listed last year, the seller has trenched out the perimeter of the house, added french drain tubes and sealed the foundations walls. The property is currently tenant occupied. Seller has also added a mini split in the living room for your personal comfort. (The double vanity shown in the photos has been removed.
Based on current rates
Est. 6.90% rate · 30yr fixed · $132,000 loan
Full calculator →Key facts and listing details
5 categories of property features
Market data and value estimates
3 schools rated nearby
Marion, OH, 43302
8 events
16 years of records
Local context around this listing
Marion, OH • Marion County
Nearby cities
Nearby zip codes
IDX information is provided exclusively for personal, non-commercial use, and may not be used for any purpose other than to identify prospective properties consumers may be interested in purchasing. Information is deemed reliable but not guaranteed.
No obligation · Same-day response