Loading...

Lancaster, PA, 17602 • Churchtowne • Lancaster County
0.1 acLot
LANCASTER CITY
Churchtowne
Demand and pricing signals for this listing
7 views
People checking out this listing
540 days on market
Established listing
Lot
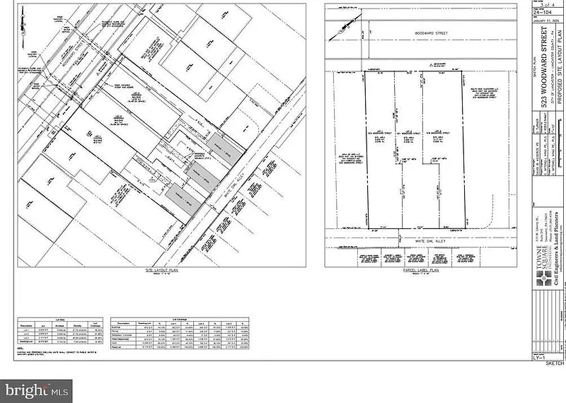
Attention Developers and entrepreneurs, available for purchase over 6000 square foot lot in Churchtowne with the ability to subdivide into 3 total parcels for new construction. The site is in pre-development as the seller is working with an engineering firm and Lancaster City. Current project has gained preliminary support from authorities having jurisdiction. Existing on-site is a 2 1/2-story single-family home which is attached as an end of the row home. Site is priced in its unapproved and unimproved state, at $100,000 per lot, as Seller continues to move through the development process cost will reflect work completed; moving through approvals and then improvements. Attention house hunters and first-time home buyers. Interested in building your home from the ground up? Call the listing agent for potential options to bring your builder or work with the owner to build your new home.
Based on current rates
Est. 6.75% rate · 30yr fixed · $68,000 loan
Full calculator →Key facts and listing details
Market data and value estimates
3 schools rated nearby
Lancaster, PA, 17602
9 events
24 years of records
Local context around this listing
Lancaster, PA • Lancaster County
Nearby neighborhoods
Nearby cities
Nearby zip codes
No obligation · Same-day response