Loading...

Chicago, IL, 60634 • Portage Park • Cook County
-$1,000 since Nov 3, 2025
0.39 acLot
Demand and pricing signals for this listing
96 views
People checking out this listing
2 saves
Buyers have saved this home
272 days on market
Established listing
Lot
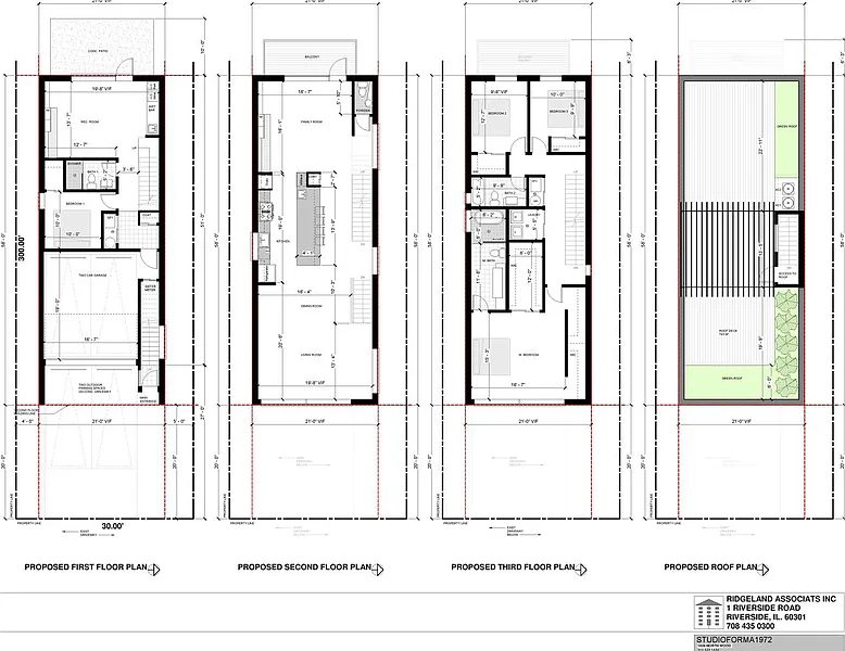
EXCEPTIONAL DOUBLE AND OVERSIZED LOT. APROXIMATELY 60 X 299 (6 CITY LOTS). RS-2 ZONING. FRAME 3 UNIT ON PROPERTY NEEDS TO BE REHABBED OR BUILD NEW 3 UNITS OR SELLER HAS PLANS FOR 2 NEW CONSTRUCTION, SPECTACULAR SINGLE FAMILY HOMES (SEE PICS FOR DETAILS). ALREADY ALL GUTTED OUT. NEIGHBOR'S LOT (WEST SIDE) IS ALSO FOR SALE. ONE CAN ALSO BUILD CONDOS OR TOWNHOMES WITH ZONING CHANGE. ACT NOW!
Based on current rates
Est. 6.04% rate · 30yr fixed · $519,120 loan
Full calculator →Key facts and listing details
1 category of property features
Market data and value estimates
2 schools rated nearby
Chicago, IL, 60634
13 events
23 years of records
Local context around this listing
Chicago, IL • Cook County
Nearby neighborhoods
Nearby cities
Nearby zip codes
Based on information submitted to the MLS GRID as of 2026. All data is obtained from various sources and may not have been verified by broker or MLS GRID. Supplied Open House Information is subject to change without notice. All information should be independently reviewed and verified for accuracy. Properties may or may not be listed by the office/agent presenting the information. [Click here for more information](/mls-disclaimers/#17)
No obligation · Same-day response