Loading...

Pittsburgh, PA, 15217 • Squirrel Hill South • Allegheny County
$212/sqft
3Beds
2.5Baths
2,200Sqft
0.06 acLot
1920Built
Character Home
Built 1920 · 106 years of history
Tile Floors
Quality flooring throughout
Demand and pricing signals for this listing
2 views
People checking out this listing
11828 days on market
Established listing
$212/sqft
Price per square foot
Townhouse · Built 1920 · Historic
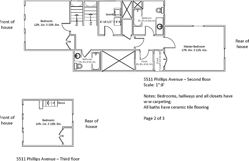
This modern three story, 3BR, 2.5 bath center-unit townhome is bright, well maintained. It is located in the Squirrel Hill area of Pittsburgh, within a 10 minute walk to Schenley Park. The exterior is a combination of red brick and stucco. The interior color scheme is white walls and ceilings with off-white wood trim on all floors. The property is close to public transportation, shopping areas, University of Pittsburgh, Carnegie Mellon University, Carlow College and the University of Pittsburgh Medical Center. The townhouse has the following amenities: Neutral colors, newly painted top to bottom New wall to wall deep pile carpeting throughout Refrigerator, microwave oven, disposal and tile floor in kitchen Gas forced-air heat, A/C Installed alarm system (monitoring extra) Smoke & fire detectors with battery backup Washer and dryer on second floor Integral one garage, lots of closet and storage space Deck and private yard in the rear First floor has LR, DR, Kitchen, and powder room Second floor has MBR, Br2, two full baths, laundry room with washer & dryer Third floor has Br3, (use as bedroom, office, den, etc.) Utilities extra.
Based on current rates
Est. 6.11% rate · 30yr fixed · $373,520 loan
Full calculator →Key facts and listing details
7 categories of property features
4 rooms detailed
Walk In Closet
Dining Room
Laundry Room
Master Bath
Market data and value estimates
3 schools rated nearby
Pittsburgh, PA, 15217
6 events
24 years of records
Local context around this listing
Pittsburgh, PA • Allegheny County
Nearby neighborhoods
Nearby cities
Nearby zip codes
No obligation · Same-day response