Loading...

Pittsburgh, PA, 15217 • Squirrel Hill South • Allegheny County
$212/sqft
3Beds
3Baths
1,900Sqft
Demand and pricing signals for this listing
1 views
People checking out this listing
11511 days on market
Established listing
$212/sqft
Price per square foot
Townhouse
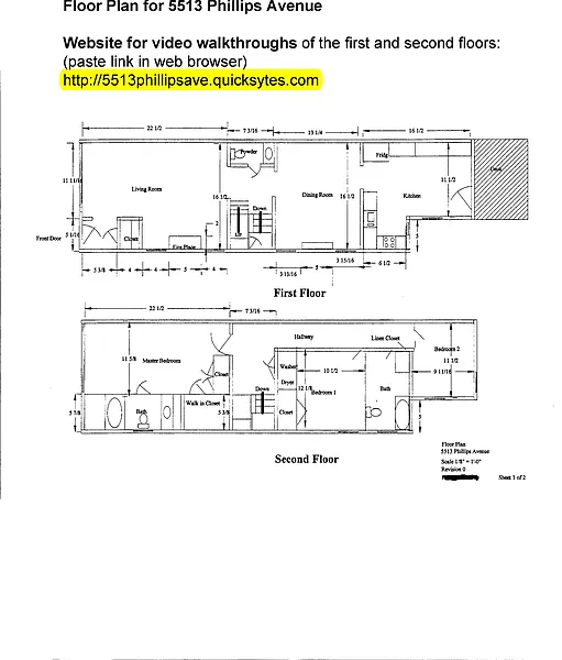
Absolutely no pets Modern interior, 10x12 rear deck, 15x60 back yard. Integral 1-car garage + 1 space off-street parking. Laundry room with Washer & Dryer on 2nd floor Gas Heat + A/C Neutral WW carpeting throughout. Large eat-in kitchen, Refrigerator, DW, Disposal, gas stove, microwave Full basement Tenant pays for: Gas, Electricity, Water & Sewage
Standout features identified
Our analysis highlights modern interior, large eat-in kitchen, and gas stove as key attractions of this home.
Based on current rates
Est. 6.11% rate · 30yr fixed · $322,240 loan
Full calculator →Key facts and listing details
5 categories of property features
Market data and value estimates
3 schools rated nearby
Pittsburgh, PA, 15217
12 events
24 years of records
Local context around this listing
Pittsburgh, PA • Allegheny County
Nearby neighborhoods
Nearby cities
Nearby zip codes
No obligation · Same-day response