Loading...

Toronto, ON, M1E3S5 • West Hill • Toronto Division
0.2 acLot
Waterfront Property
None
Other Style
Other architecture
This home is getting attention
Listed 71 days ago · 15 views · 1 saves
Demand and pricing signals for this listing
15 views
People checking out this listing
1 saves
Buyers have saved this home
71 days on market
Established listing
This home ranks in the top 11% of listings most likely to go under contract soon, based on market activity and demand signals.
Want the full market analysis?
Get the detailed selling prediction score, comparable sales data, and price trend forecast for this property.
Free · Delivered to your inbox in minutes
Lot
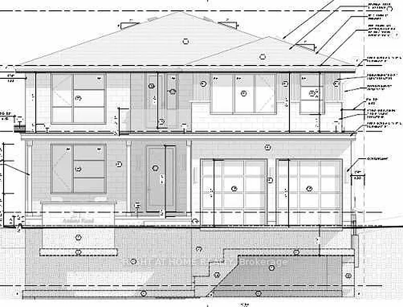
Attention builders, Construction project of a 3857 sq ft, 2 storey, 4-bedroom house. Foundation completed. Approved Drawings available to continue the project. Sold Under Power Of Sale Therefore As Is/Where Is Without Any Warranties From The Seller.
Based on current rates
Est. 6.75% rate · 30yr fixed · $632,000 loan
Full calculator →Key facts and listing details
5 categories of property features
Market data and value estimates
Toronto, ON, M1E3S5
Local context around this listing
Toronto, ON • Toronto Division
Nearby neighborhoods
Nearby cities
Nearby zip codes
IDX information is provided exclusively for consumers’ personal, non-commercial use, that it may not be used for any purpose other than to identify prospective properties consumers may be interested in purchasing, and that data is deemed reliable but is not guaranteed accurate by the MLS®.
No obligation · Same-day response