Loading...

Buffalo, NY, 14221 • 14221 • Erie County
$145/sqft
2Beds
2Baths
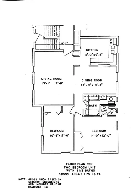
1,135Sqft
9.5 acLot
1966Built
Tile Floors
Quality flooring throughout
Demand and pricing signals for this listing
2 views
People checking out this listing
1377 days on market
Established listing
$145/sqft
Price per square foot
Condo · Built 1966
Enjoy the carefree lifestyle of condo living at 73 Old Lyme Rd #4. Open the door and fall in love with the large living room/ dining room combo. Front picture window overlooks the front lawn. Kitchenwith white cabinets, pantry and pass thur/breakfast bar to dining room. Stove and Fridge Included. Primarybedroomwith ensuite1/2 bath and generouscloset space. Unit #4 is an end unit with extra windows in bedrooms. Full bath with neutral tile. Private Laundry hook ups in the basementalong with an oversizedlockedstorage unit. Washer and Dryer included in sale. Located in the sought after WilliamsvilleSchool District. Convenientlylocatednear Maple Rd, short drive to UB North or South Campus. Sorry No rentals or pets
Based on current rates
Est. 6.75% rate · 30yr fixed · $131,360 loan
Full calculator →Key facts and listing details
10 categories of property features
Market data and value estimates
3 schools rated nearby
Buffalo, NY, 14221
14 events
25 years of records
Local context around this listing
Buffalo, NY • Erie County
Nearby neighborhoods
Nearby cities
Nearby zip codes
No obligation · Same-day response